
















This beautifully presented townhouse offers the perfect blend of charm and modern comfort, with a unique cottage inspired feel that creates a warm and inviting home.
Designed by renowned Australian architect Gabriel Poole, the property showcases thoughtful design elements that emphasise light, space and natural materials, features that continue to make his homes so distinctive and sought after.
Inside, the home features a striking combination of slate flooring paired with timber look tiles, complemented by fresh white walls that enhance the natural light and contemporary style throughout. The finishes create a modern yet cosy atmosphere that immediately feels like home.
Upstairs, high ceilings create an airy sense of space, while the renovated upstairs bathroom offers a fresh and stylish finish. A second updated bathroom downstairs adds practicality and convenience for everyday living.
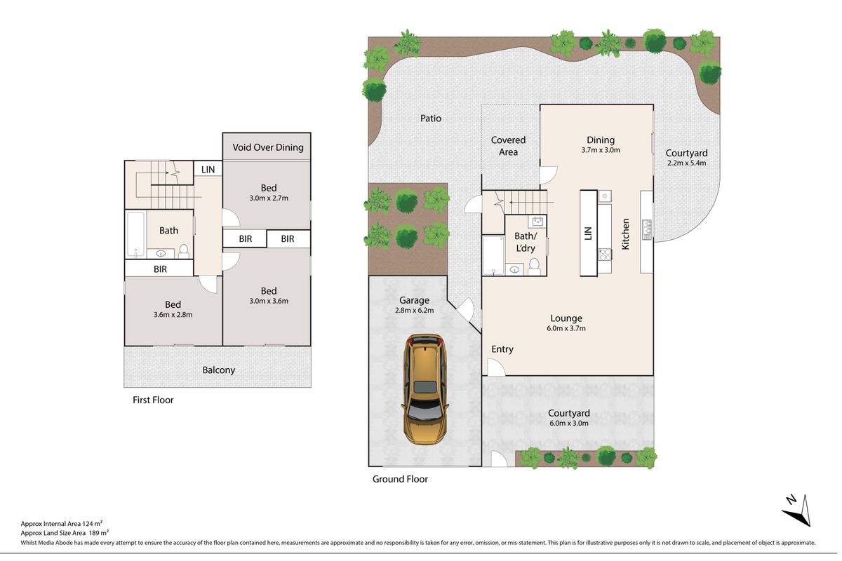
Property features include
-Three bedrooms, main with air conditioning
-Functional living spaces with a galley kitchen separating them, split system air conditioning
-Modern Galley kitchen with quality appliances throughout, dishwasher, ceramic cooktop.
-Renovated bathroom upstairs
-Updated bathroom and combined laundry downstairs
-Large outdoor living space at the back and small tidy entry space
-Single remote garage
-Plenty of storage throughout the property
-Solar power
FAQ's
Minimum lease term 12 months
Pets on Application subject to owner and body corporate approval
Tenant to pay for electricity, gas if required, internet
Water included in the rental price
Unfurnished property
Disclaimer: We have in preparing this information used our best endeavours to ensure that the information contained herein is true and accurate, but accept no responsibility and disclaim all liability in respect of any errors, omissions, inaccuracies or misstatements that may occur. Prospective tenants should make their own enquiries to verify the information contained herein.
Prospective tenants need be aware there will not be the opportunity to view the property again if approved.


















































